฿7,900,000
Property ID:
4
ห้องนอน
6
ห้องน้ำ
3
ที่จอดรถ
439
ตร.ม.
Description
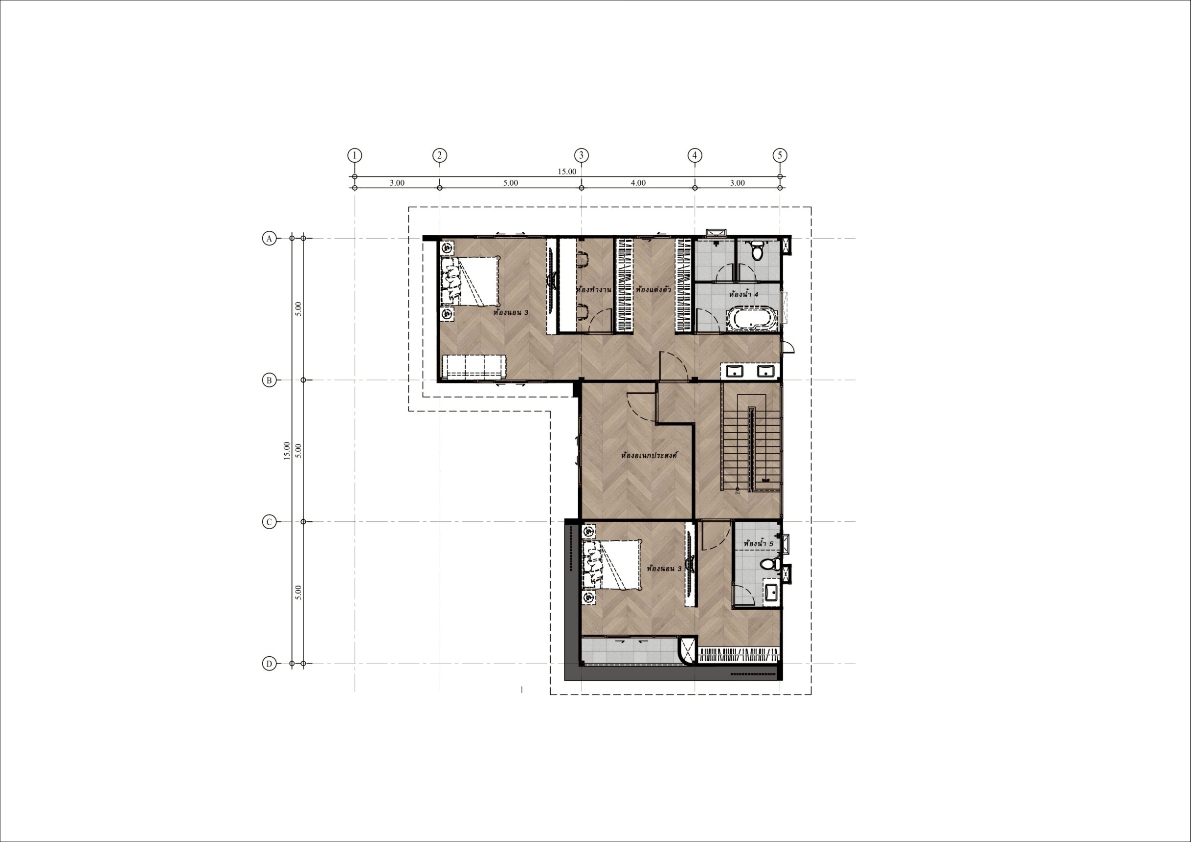
แบบบ้าน ABCX439
ราคาลงหน้าเว็บ 7,900,000 บาท
บ้าน 3 ชั้น 4 ห้องนอน 6 ห้องน้ำ 1 ห้องรับแขก 1 ห้องรับประทานอาหาร 1 ห้องพักผ่อน 1 ห้องครัว 1 ห้องแม่บ้าน 3 ที่จอดรถ ขนาด 15.00×15.70 เมตร พื้นที่ใช้สอย 439 ตารางเมตร เหมาะสำหรับที่ดิน 19.00 x19.00 เมตร
Details
ห้องนอน:4
ห้องน้ำ:6
ห้องครัว:1
ห้องนั่งเล่น:1
ที่จอดรถ:3

